Warning: Undefined array key "HTTP_ACCEPT_LANGUAGE" in /var/www/vhosts/ilalift.com/httpdocs/lib/Utils.php on line 76

Deprecated: substr(): Passing null to parameter #1 ($string) of type string is deprecated in /var/www/vhosts/ilalift.com/httpdocs/lib/Utils.php on line 76
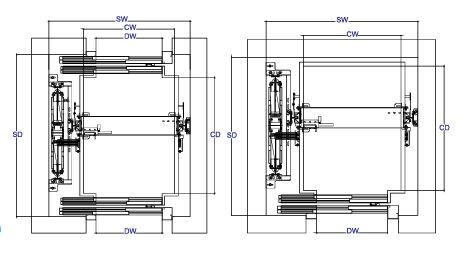
ASANSÖR STANDART ÖLÇÜ TABLOSU

ASANSÖR STANDART ÖLÇÜ TABLOSU